• Dyfuzor-zawór wyrównania ciśnień Fermod 222NT
  • Dyfuzor-zawór wyrównania ciśnień Fermod 222NT

Dyfuzor-zawór wyrównania ciśnień Fermod 222NT

Netto 225,00 zł
Brutto 276,75 zł
Ilość

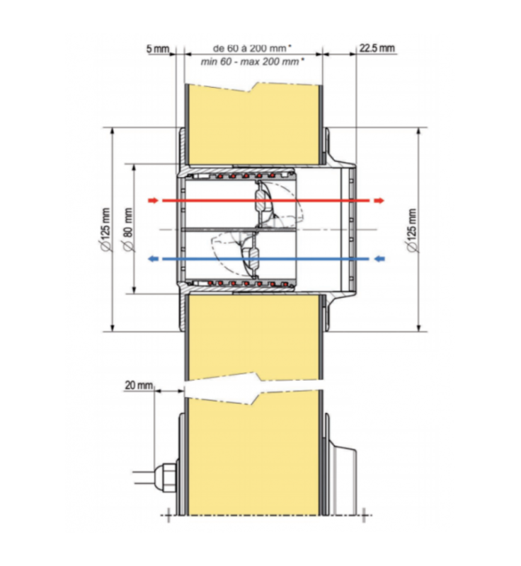
Zawór wyrównwanczy - dekompresyjny FERMOD 2220NT (Ścienny, Mroźnia Do -30°C) jest to sterowany mechanicznie zawór z dwiema hermetycznymi, ruchomymi klapami wyposażonymi w sprężyną powrotną, umożliwiającymi przepływ powietrza w dowolnym kierunku. Oznacza to, że gdy nie jest to potrzebne, chłodnia jest nadal szczelna, bez wyciekania cennego zimnego powietrza z pomieszczenia i powodowania częstszej pracy maszyn. Gdy ciśnienie wzrośnie, zawory otwierają się i umożliwiają wyrównanie.

Teleskopowa budowa zaworu pozwala na jego regulacje w celu dopasowania do różnych grubości ścian  - zakres od 60mm do 120mm.

Przewód grzewczy o mocy 8W zapobiegający zamrazaniu klap,  pracuje w sposób ciągły, jest zamontowany w obwodzie i całkowicie zamknięty w zaworze. Połączenie wykonuje się na zewnątrz komory, poprzez kabel wystający z dławika. Zawór stosowany w komorach o temperaturze do -30 °C. Jeśli zawór jest wykorzystywany do wyrównania w komorze o dodatniej temperaturze, przewód grzewczy nie powinien być podłączony do zasilania.

02220